/ Back

2000 Ranch Buildable Plan
Starting at $1,049,900

Buildable Plan – Available in Multiple Elevations

The most sought-after feature in today’s homedesigns: the main floor owner’s suite, shown in this welldesigned 3 bedroom 2.5 bathroom plan. Light pours in fromtwo exposures in the open living, dining and kitchen areawith large island and glass doors to outdoor living. Temptedby more living and sleeping space? Finish the lower level for additional bedroom, bath and Rec room/flex space. Model open daily.

Photos are a representation of past model

Home Features

Floorplan Layout

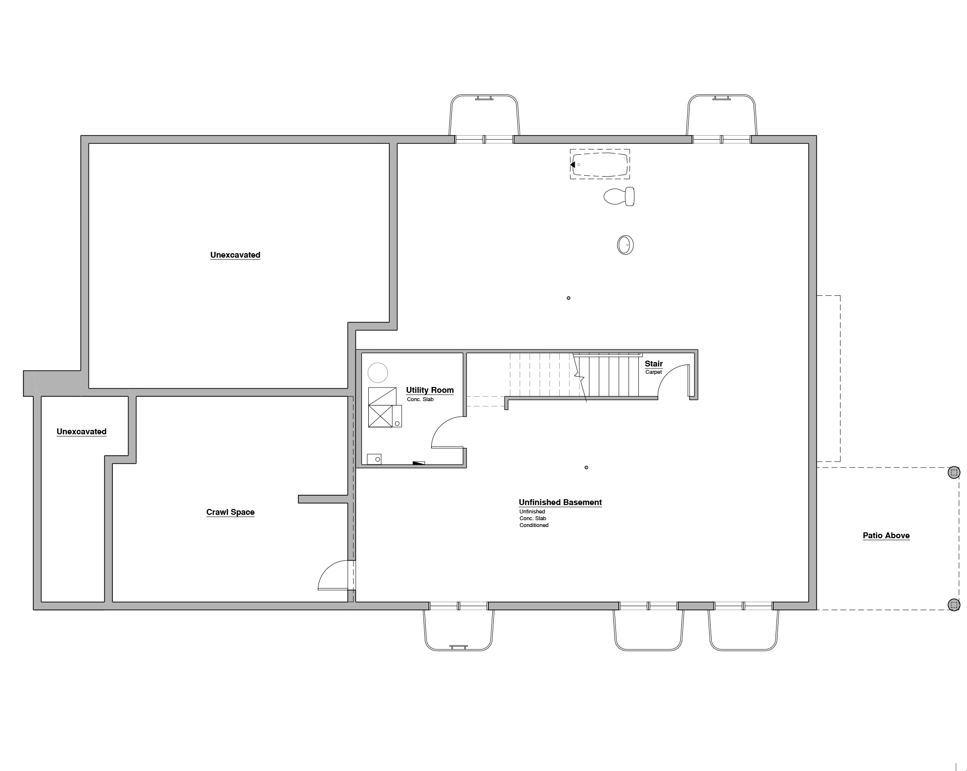
2000 Ranch Buildable Plan | Unfinished Basement Plan

2000 Ranch Front Load Modern Prairie Unfinished Basement

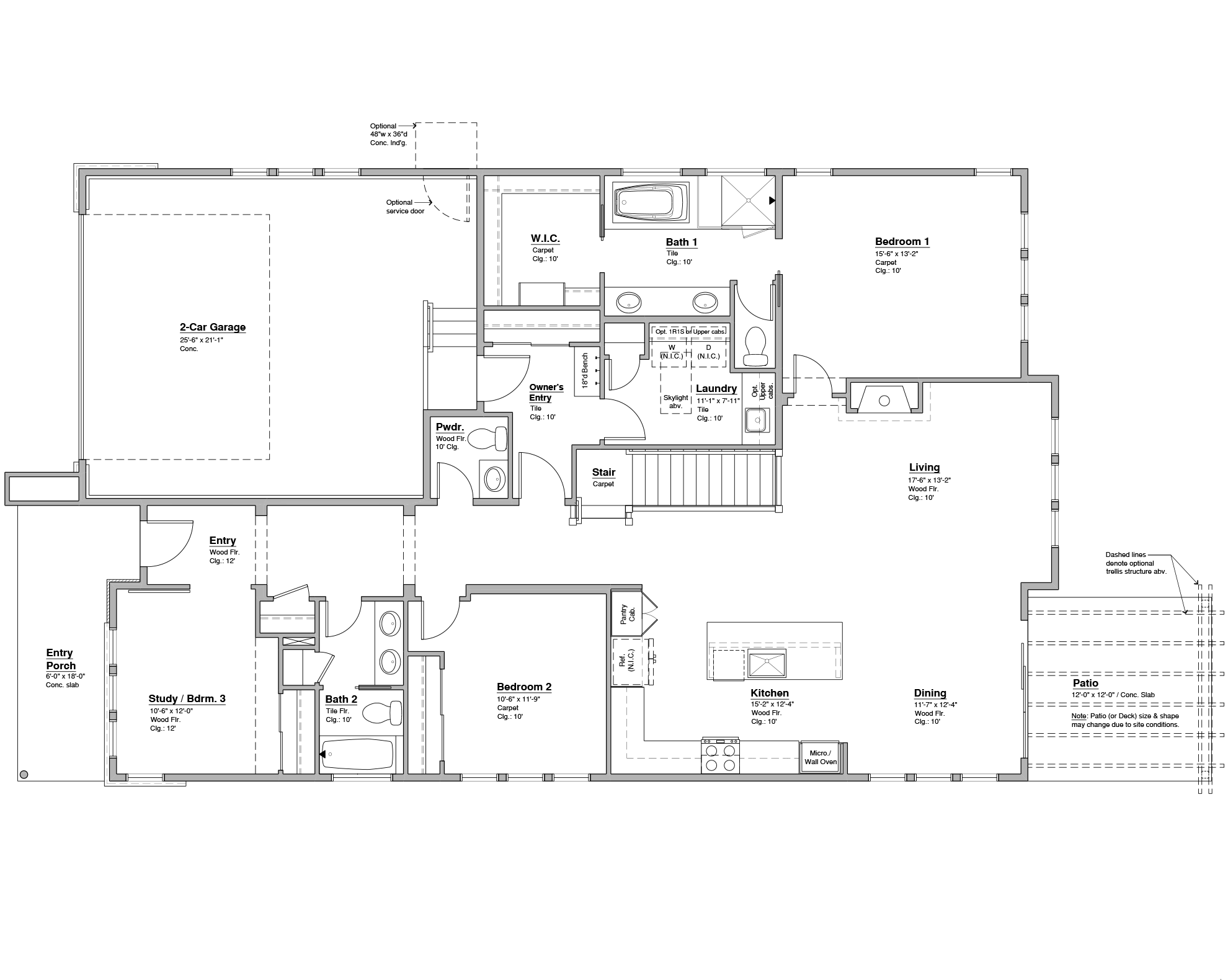
2000 Ranch Buildable Plan | Main Floor

2000 Ranch Front Load Modern Prairie Main Level

2000 Ranch Buildable Plan | Optional Finished Basement

2000 Ranch Front Load Modern Prairie Finished Basement

Get In Touch

Let us know which communities you are interested in and we'll keep you updated on information and events.
If you are interested in learning more about our Marshall Fire rebuilding program, please provide your home address in the message field.

MARKEL HOMES
5540 Central Ave. | Unit 200
Boulder, CO 80301
303.449.8689

Markel Homes will use the information you provide on this form to be in touch with you via email and to provide updates and marketing. You can change your mind at any time by clicking the unsubscribe link in the footer of any email you receive from us, or by contacting us at denise@markelhomes.com. We will treat your information with respect. For more information about our privacy practices please visit our website. By clicking below, you agree that we may process your information in accordance with these terms.We use MailChimp as our marketing automation platform. By clicking below to submit this form, you acknowledge that the information you provide will be transferred to MailChimp for processing in accordance with their Privacy Policy and Terms.