/ Back

725 Kubat Lane Unit A
$859,900

Shed the responsibilities of a single-family home and step into the LAST and FINAL easy living, low maintenance duplex at West Grange. The 2-story farmhouse architectural design is reminiscent of another era, yet modern in style, amenities and selections. UPGRADES INCLUDE back patio trellis, living room gas fireplace, brushed nickel bath package, Euro glass shower enclosure with poured shower pan in owner’s suite and more!

Home Features

Floorplan Layout

725 Kubat Lane Unit A | Unfinished Basement

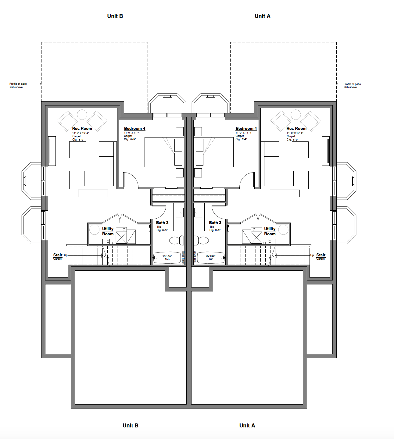
725 Kubat Lane Unit A | Finished Basement

725 Kubat Lane Unit A | Main Level

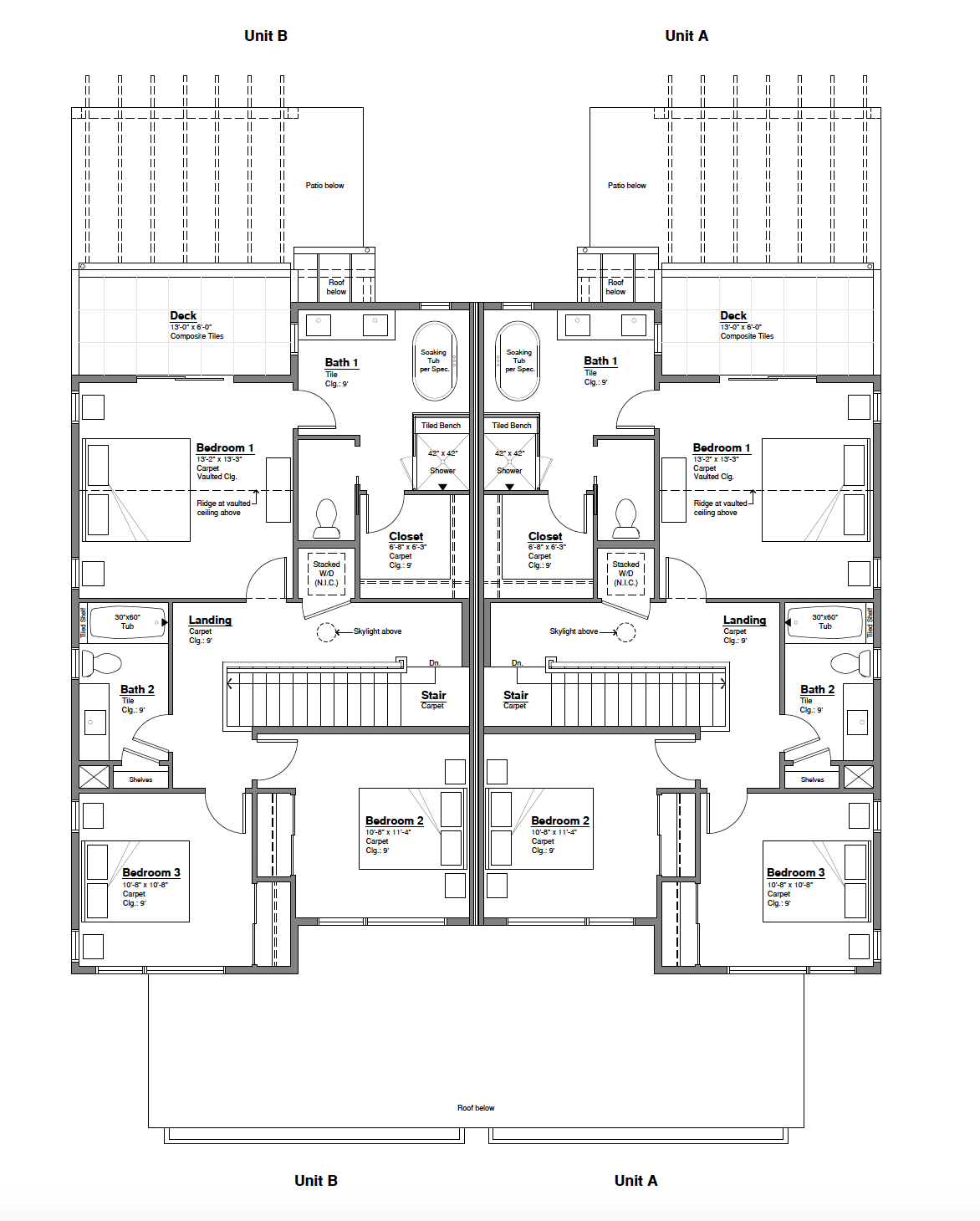
725 Kubat Lane Unit A | Second Level

Get In Touch

Let us know which communities you are interested in and we'll keep you updated on information and events.
If you are interested in learning more about our Marshall Fire rebuilding program, please provide your home address in the message field.

MARKEL HOMES
5540 Central Ave. | Unit 200
Boulder, CO 80301
303.449.8689

Markel Homes will use the information you provide on this form to be in touch with you via email and to provide updates and marketing. You can change your mind at any time by clicking the unsubscribe link in the footer of any email you receive from us, or by contacting us at denise@markelhomes.com. We will treat your information with respect. For more information about our privacy practices please visit our website. By clicking below, you agree that we may process your information in accordance with these terms.We use MailChimp as our marketing automation platform. By clicking below to submit this form, you acknowledge that the information you provide will be transferred to MailChimp for processing in accordance with their Privacy Policy and Terms.