Butterfly Triplex Exterior
/ Back

767 Cristo Lane Unit B
$599,900 MODEL HOME

Modern Farmhouse Triplex Townhome

Triplex Townhome Model – Now Available for Sale. Quick Move-in.

PRICE IMPROVEMENT! This corner, south-west facing MODEL HOME offers distinctive rooflines, large windows, Energy Star® appliances, and beautiful designer finishes which puts a contemporary spin on the newwest design. Each 3-bed / 3.5-bath town home features an open living and kitchen area plus powder room on the main floor, two en-suite bedrooms with baths on the upper level, and the 3BR/office, bath and rec room in the finished lower level. Furniture negotiable.

Apply a Builder Incentive of $30k Towards Interest Rate Buy-Down, HOA Fees, Closing Costs, and/or Upgrades!

Home Features

Floorplan Layout

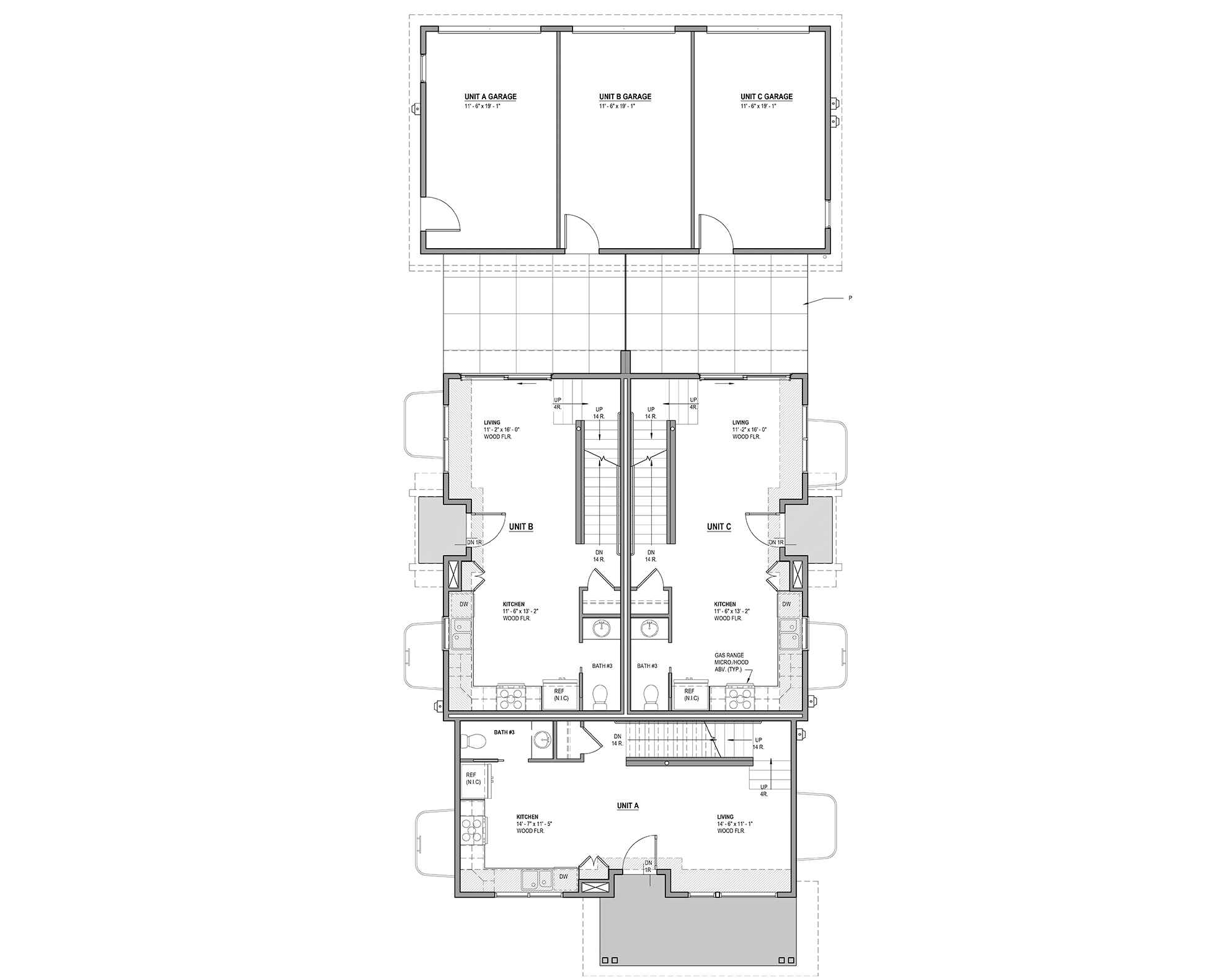
767 Cristo Lane Unit B | Main Level

Triplex main level floor plan

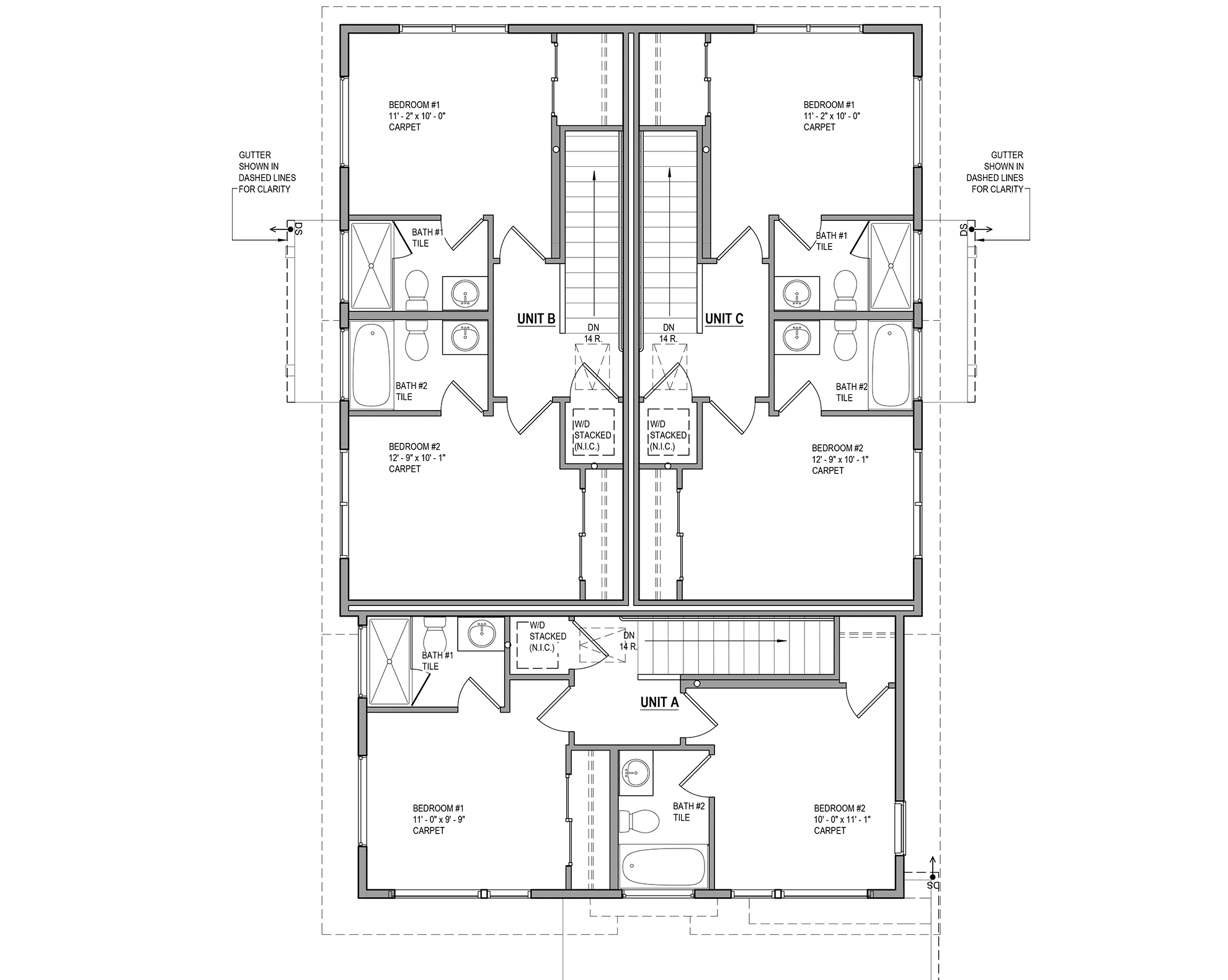
767 Cristo Lane Unit B | Second Level

triplex second story floor plan

767 Cristo Lane Unit B | Basement

Triplex finished basement floorplan

Get In Touch

Let us know which communities you are interested in and we'll keep you updated on information and events.
If you are interested in learning more about our Marshall Fire rebuilding program, please provide your home address in the message field.

MARKEL HOMES
5540 Central Ave. | Unit 200
Boulder, CO 80301
303.449.8689

Markel Homes will use the information you provide on this form to be in touch with you via email and to provide updates and marketing. You can change your mind at any time by clicking the unsubscribe link in the footer of any email you receive from us, or by contacting us at denise@markelhomes.com. We will treat your information with respect. For more information about our privacy practices please visit our website. By clicking below, you agree that we may process your information in accordance with these terms.We use MailChimp as our marketing automation platform. By clicking below to submit this form, you acknowledge that the information you provide will be transferred to MailChimp for processing in accordance with their Privacy Policy and Terms.